• TRABALHOS
  • SOBRE
PUBLICAÇÕES
CONTATO
Reinaldo Nishimura Reinaldo Nishimura
  • TRABALHOS
  • SOBRE
PUBLICAÇÕES
CONTATO

Mil e 500

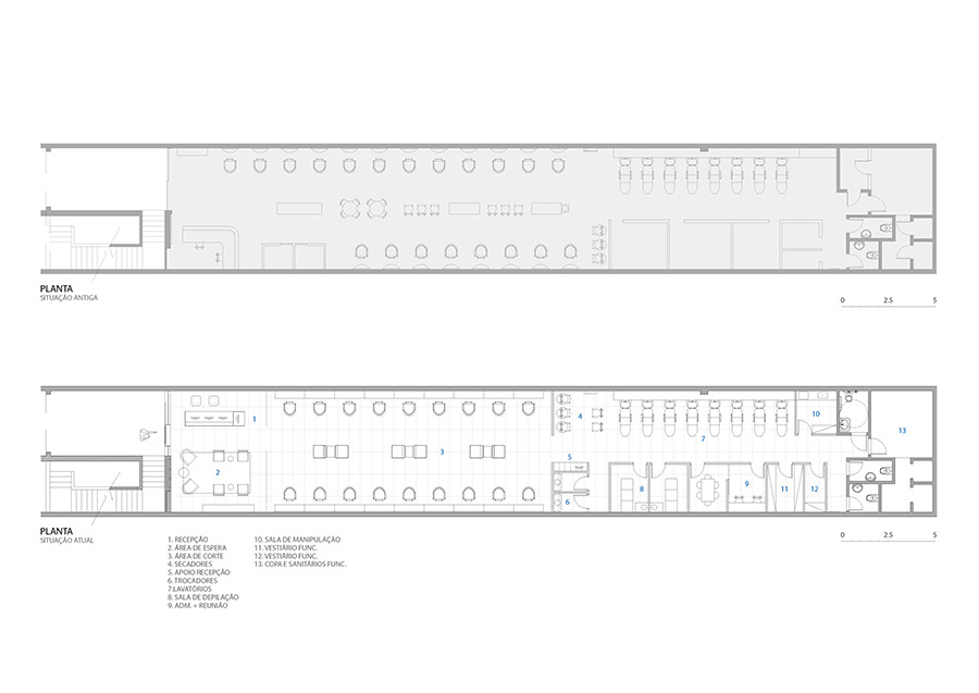
Equipe: Pedro Luís Nischimura Fotos: Leonardo Finotti Projeto: Reforma - Salão Mil e 500 Local: Higienópolis - São Paulo Ano: 2013 Área do Projeto: 230m²

© 2017 Nishimura Estúdio de Arquitetura